新陶實業有限公司
SOTO產品&最新優惠
優惠專區
浴櫃組
鋼烤浴櫃
實木浴櫃
半截式浴櫃-潮濕空間用
洗衣槽櫃組
浴鏡&鏡櫃&收納櫃
藝術浴鏡
實木浴鏡組+收納櫃
鏡箱置物鏡櫃
龍頭
面盆龍頭
加高龍頭
廚房龍頭
沐浴龍頭&大花灑
單冷水龍頭
陶瓷面盆
立柱盆
半崁盆
下崁盆
上崁盆
檯面盆
小尺寸壁掛盆
彩繪藝術盆
馬桶&小便斗
單體馬桶
超級馬桶
特殊馬桶
小便斗
居家擺飾&收納配件
置衣架&轉角架&衛生紙架
止滑安全扶手
花灑配件
各式施工零組件
豪華浴缸
獨立浴缸
崁入式浴缸
經典黑色系列
黑色面盆龍頭
黑色沐浴龍頭
黑色衛浴配件
工業風鐵架系列
古香典雅系列
典雅居家配件
古典龍頭系列
暖風機&換氣扇&免治馬桶座
幼童衛浴設備
衛浴設備恆久如新技巧
衛浴設備保養
衛浴選購技巧
客戶好評
關於SOTO
聯絡我們
Home
PRODUCTS
SOTO產品
浴櫃組
實木浴櫃
分類列表
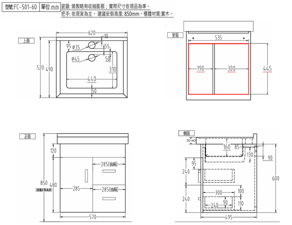
FC-501 多功能實木大深度霸王浴櫃
大深度霸王浴櫃
商品類型:實木浴櫃, 典雅浴櫃, 大尺寸浴櫃, 實木家具, 古典風衛浴
1200*520*600MM (中間雙門,左右雙抽 )
1000*520*600MM (左雙門,右雙抽/右雙門,左雙抽 )
900*520*600MM (左雙門,右雙抽/右雙門,左雙抽 )
800*520*600M (左單門,右雙抽/左雙抽,右單門)
700*520*600MM (左單門,右雙抽)
600*520*600MM (左單門,右雙抽)
實木浴櫃為原木製作,每款色澤皆略有不同
產品介紹
產品介紹
瓷器燒製略有收縮膨脹 ; 實際尺寸以現品為準
●緩衝式鉸鏈五金,優雅開關無噪音
●乾濕分離空間使用最佳,請注意後紐保養
●請特別注意並預留管路位置
回列表頁
加入購物車成功!
Facebook
Line